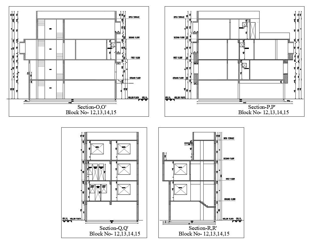
4 Storey House Building Section Drawing AutoCAD File
Description
The architecture house building all side section drawing with dimension detail CAD file includes dimension detail and 4 level floor slab and wall section detail. download DWG file of house section drawing.
Uploaded by:

