2 BHK House Layout Plan With Drainage Line CAD Drawing
Description
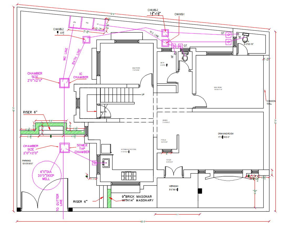
2D CAD drawing of 2 BHK house layout plan shows a drainage water closet line that connects to the chamber box. After it gets attach to the deep well. download the AutoCAD file of the public drainage plan and get more detail of plumbing pipeline drawing.
Uploaded by:

