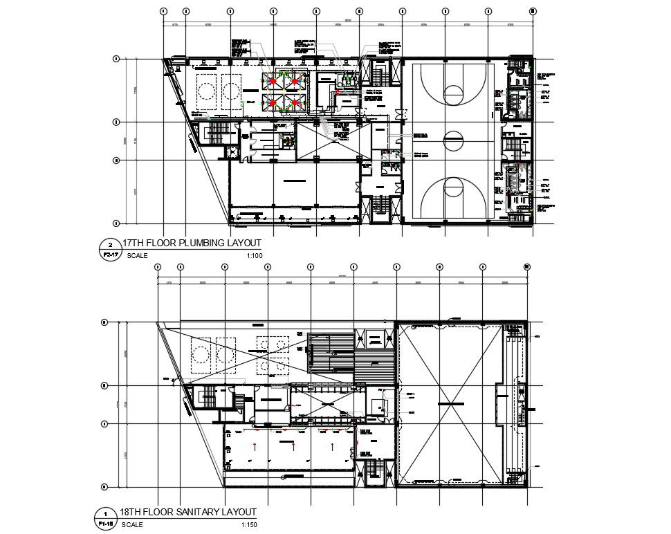
Learn How To Make Huge Club Building Plumbing And Sanitary Design Plan Autocad File
Description
Learn How To Make Huge Club Building Plumbing And Sanitary Design Plan Autocad File; this is the planning of huge club building with plumbing and sanitary details, includes centerline plan, working drawing dimension plan, toilet detail plan and much more other things related to building , its a CAD file format.
File Type:
DWG
File Size:
1014 KB
Category::
Dwg Cad Blocks
Sub Category::
Autocad Plumbing Fixture Blocks
type:
Gold
Uploaded by:
Rashmi
Solanki

