Learn How To Make Many Options Of Ceiling Design With Working Dimension Autocad File
Description
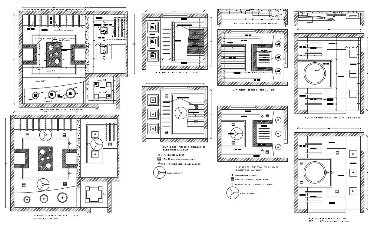
Learn How To Make Many Options Of Ceiling Design With Working Dimension Autocad File; this is the ceiling design of drawing-room, two-bedroom, master bedroom, includes working dimension, texting levels , some different hatching details related to ceiling, its a CAD file format.
Uploaded by:
Rashmi
Solanki

