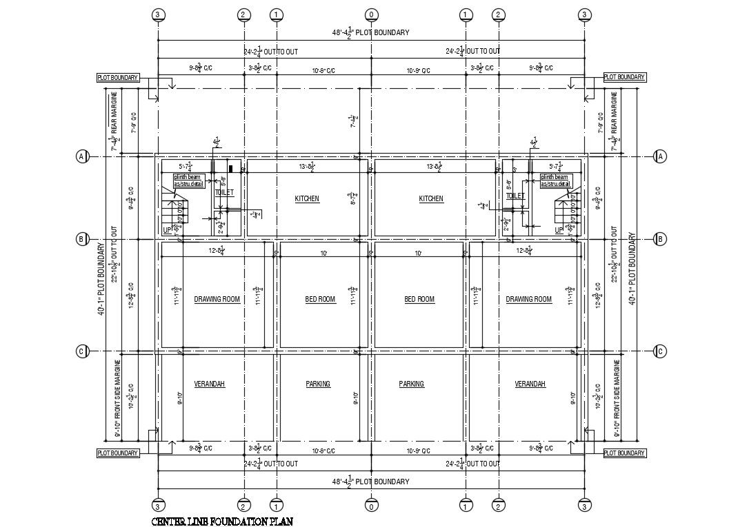
Center Line Foundation Plan Of House Drawing AutoCAD File
Description
Download AutoCAD file of 1 BHK house plan with centerline foundation drawing shows built area, plot boundary and dimension detail. this simple joint house layout plan working drawing.
Uploaded by:

