Wardrobe AutoCAD file with detailed plan and elevation design
Description
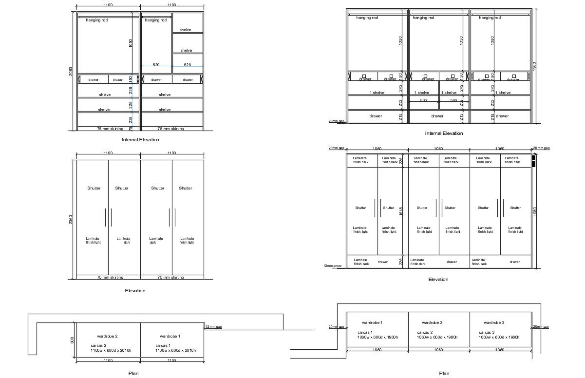
Wardrobe design including plan and elevation views for precise interior planning. Designers and architects can use this AutoCAD file to visualize storage layouts, dimensions, and sectional details accurately. The DWG file includes shelving, drawers, hanging spaces, and overall wardrobe configuration for bedroom interiors, ensuring functional design, space optimization, and professional integration into residential and commercial projects.
Uploaded by:

