Commercial Building Floor Plan With Basement Parking Plan AutoCAD File
Description
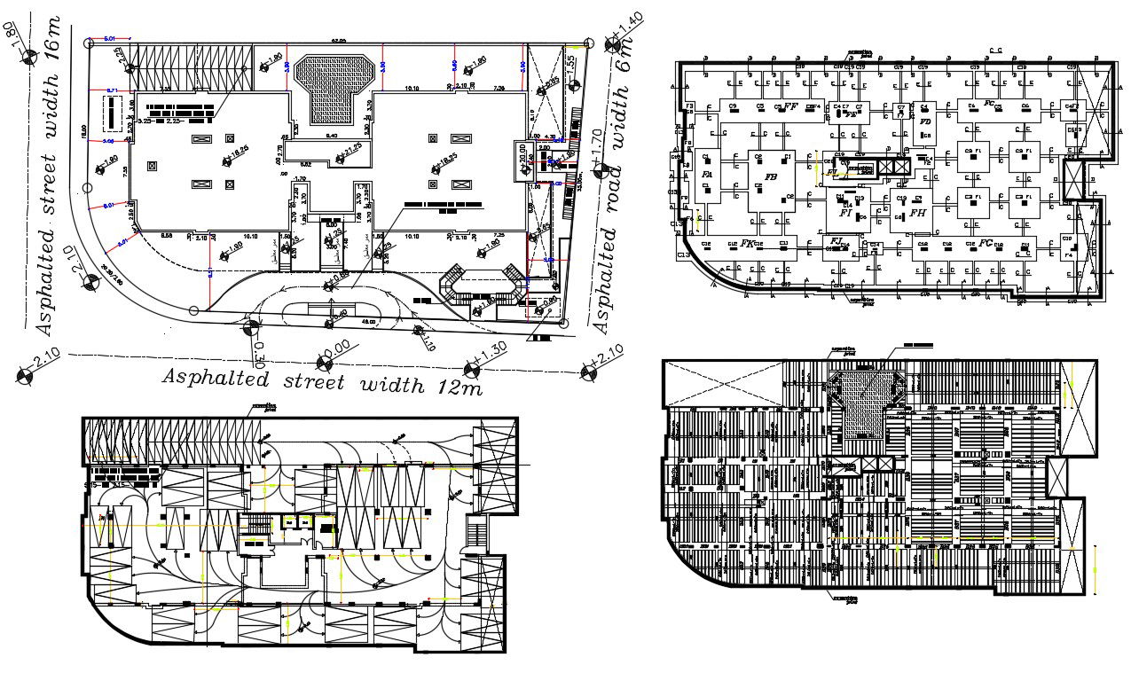
the architecture commercial building typical layout plan, basement parking plan with ramp design, and beam layout plan with all dimension detail. download AutoCAD file of commercial building floor plan CAD drawing.
Uploaded by:
