Basement And Ground floor Plan Of Commercial Building Drawing DWG File
Description
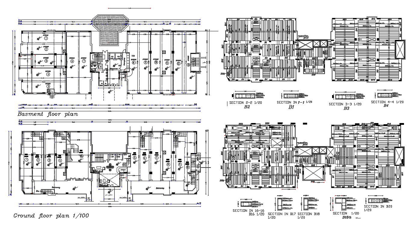
the commercial building Basement and ground floor plan CAD drawing shows 10 shops on each floor with public toilet design. download AutoCAD file of commercial building project and get more detail of RCC column and dimension details.
Uploaded by:

