CAD File Four Side Elevation Of Building With Dimension DWG Drawing
Description
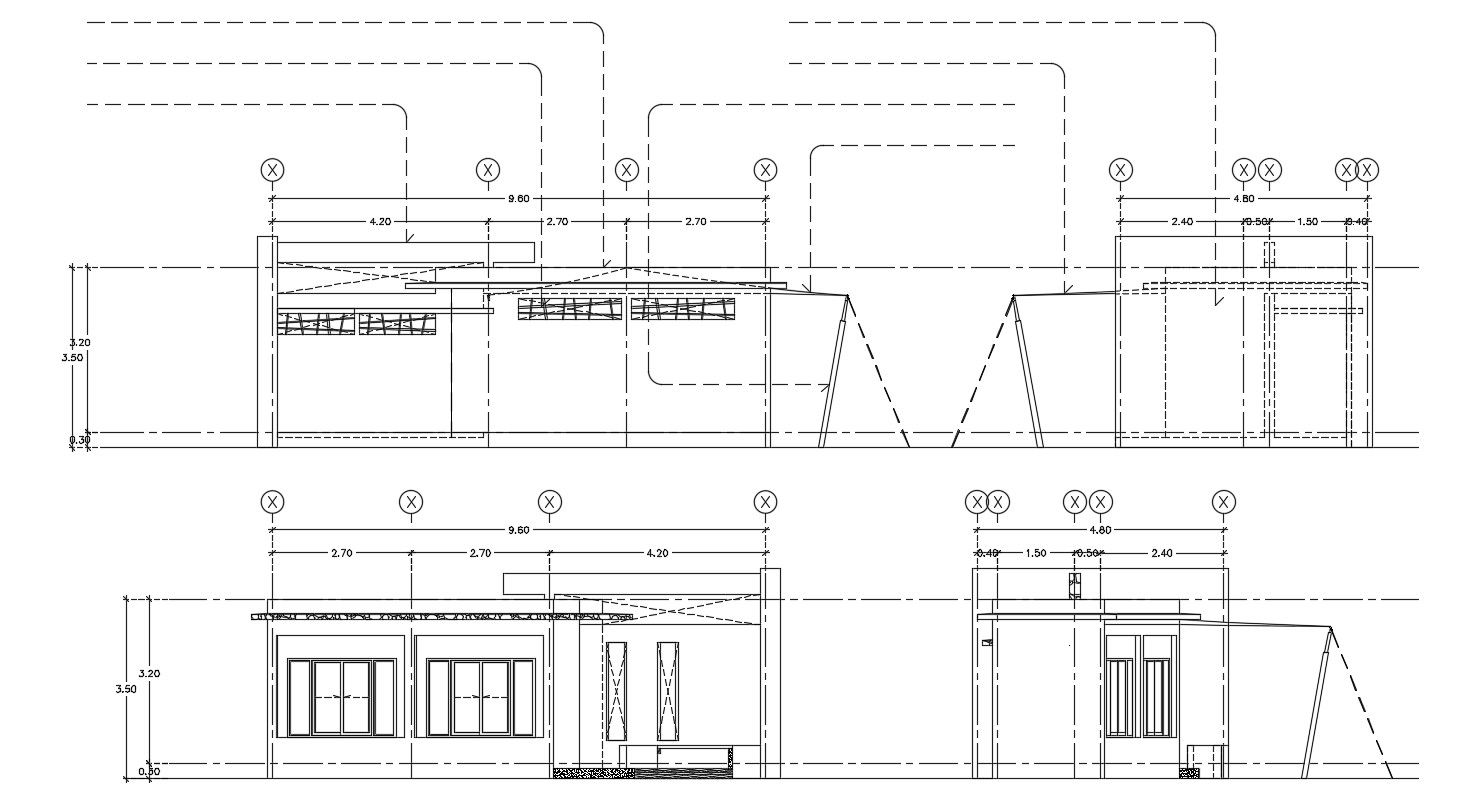
CAD File Four Side Elevation Of Building With Dimension DWG Drawing; this is the modern four side elevation of a small building with working dimension, centerline, also added a main huge canopy, download CAD file.
Uploaded by:
Rashmi
Solanki

