Office Building Architecture Layout Plan With Dimension AutoCAD File
Description
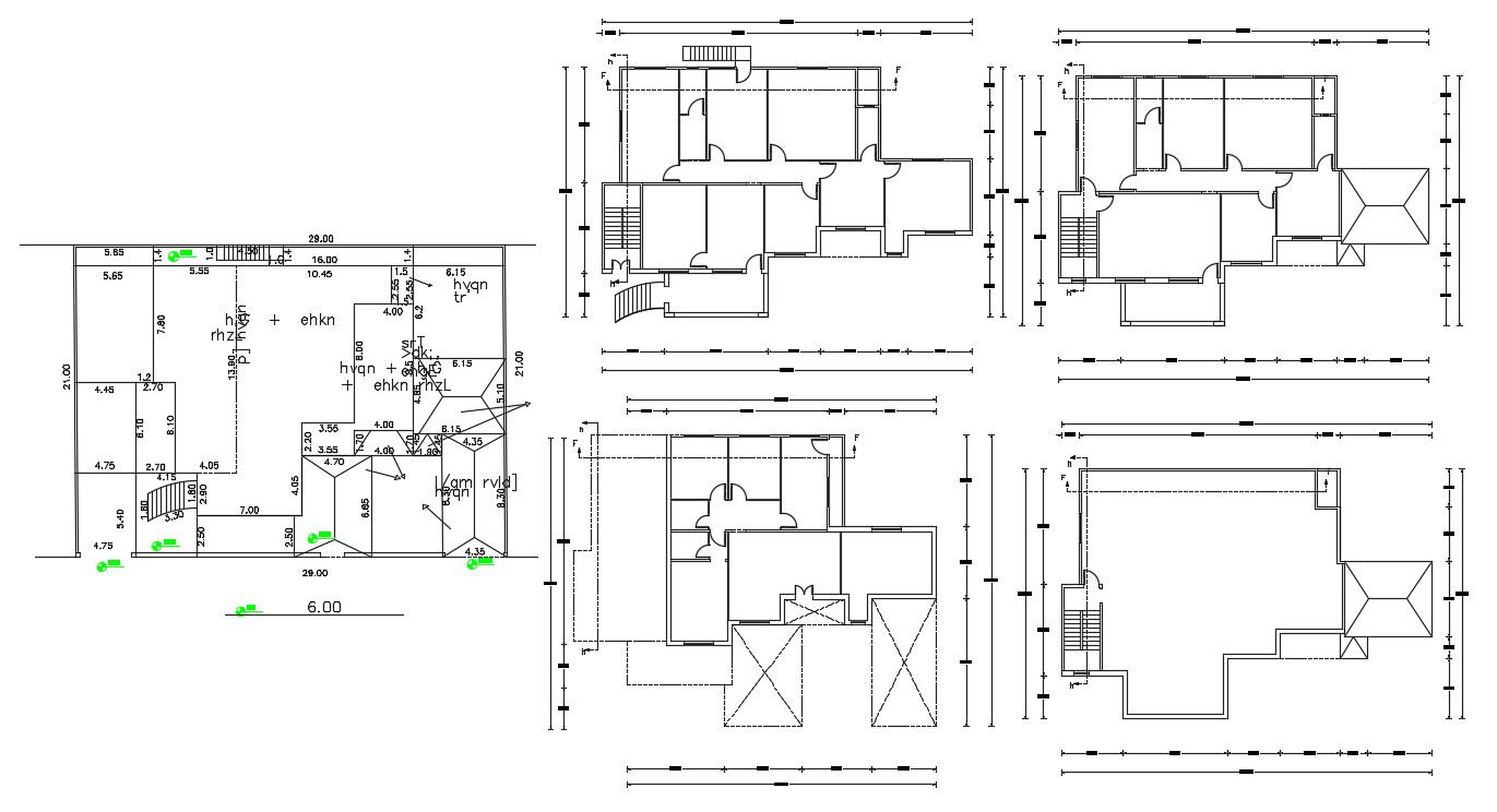
2d CAD drawing of office building different floor plan and site final town plan with all dimension detail. download DWG file-office building project this drawing has been AutoCAD format.
Uploaded by:

