Foundation Layout Plan With Wall Cross Section Drawing DWG File
Description
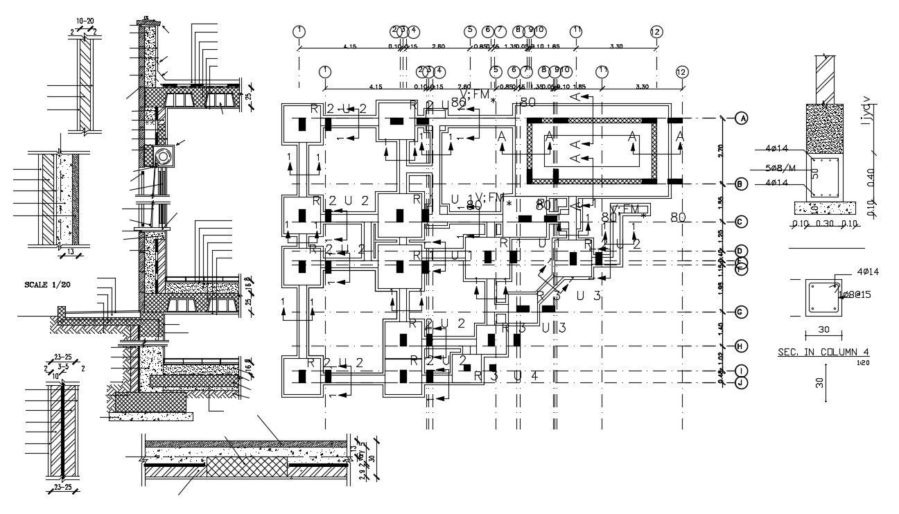
RCC foundations support base on the basis of column load and ensure that joints between formwork as per column centerline. also here slab support wall cross-section concrete and reinforced details. download DWG file of foundation with footing detail.
Uploaded by:

