Download Foundation And Column Layout Plan Joint Bar CAD Drawing DWG File
Description
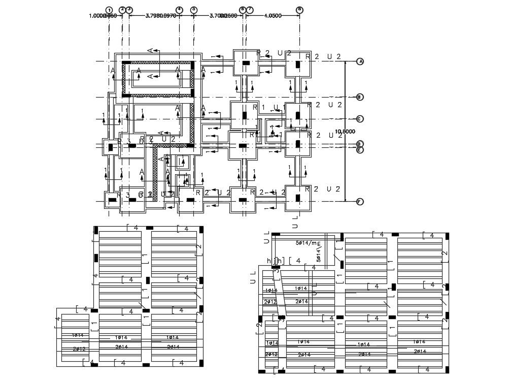
The foundation and column layout plan CAD drawing shows corners, intersections of walls, beams, and column joint and in similar situations. RCC structural member the number of different sizes of bars which depends on load. download free DWG file of RCC foundation and joint slab bar detail.
Uploaded by:

