Architecture Bungalow Plan With Garden Design AutoCAD File
Description
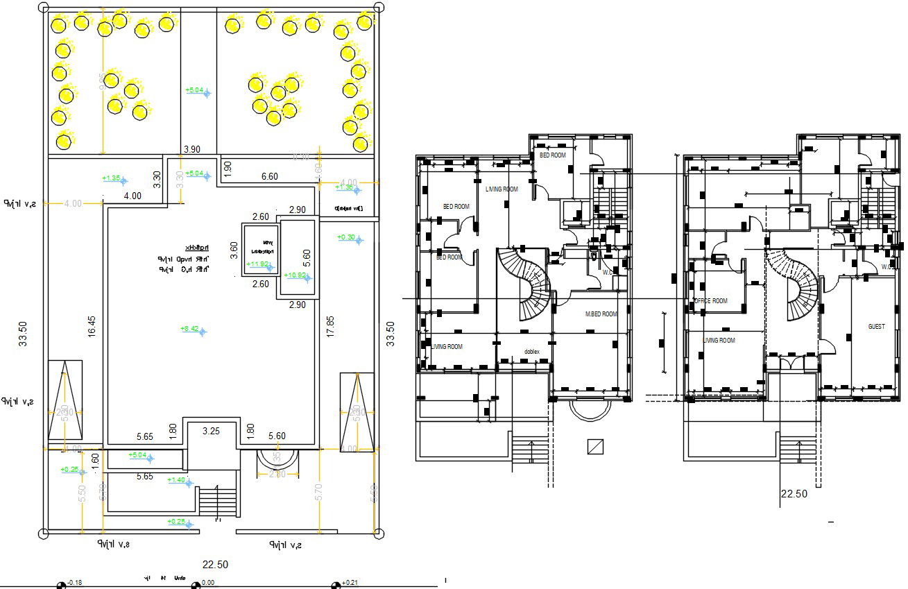
the architecture bungalow plan ground floor and first-floor plan CAD drawing includes 3 master bedrooms, guest room, drawing room, living loung, kitchen, double-height staircase, and garden design. download DWG file of bungalow plan with site compound wall and all dimension details.
Uploaded by:
