Development Final Site Town Plot Drawing With Compound Wall Design
Description
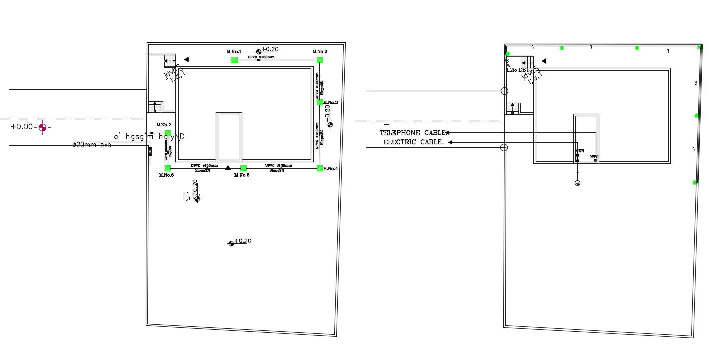
Download free DWG file of final site town plan with compound wall, build-up area and cable line detail in AutoCAD format. this drawing drafted in AutoCAD software file download more free DWG on cadbull.com
Uploaded by:

