Commercial Building Structure Design With Working Drawing AutoCAD File
Description
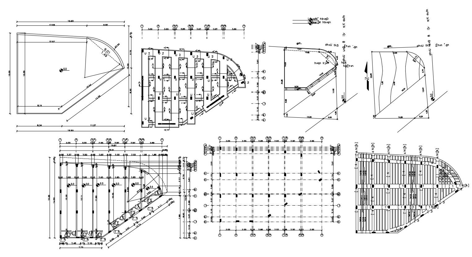
Commercial Building Structure Design With Working Drawing AutoCAD File; this is the drawing of a commercial building with beam and column grid layout, centerline plan with working dimension details, plot demarcation layout and other details related to structure.
Uploaded by:
Rashmi
Solanki

