Drawing Commercial Building Floor Plan With Parking Design
Description
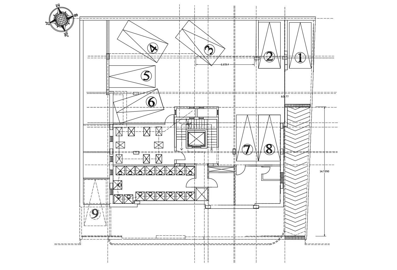
this is the ground floor plan of a commercial building with parking layout, ramp details, column demarcation details in the plan, simple centerline and much more other details related to building, its a CAD file format.
Uploaded by:
Rashmi
Solanki

