RCC Foundation and Column Section Drawing AutoCAD DWG File Download
Description
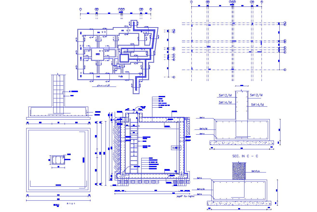
2D CAD drawing of RCC structure Foundation and column Section drawing shows the size of the footing is based on the area required to distribute the load of building slab detail. download free DWG RCC structure detail
Uploaded by:

