Apartment Typical Floor Layout Plan Drawing DWG File
Description
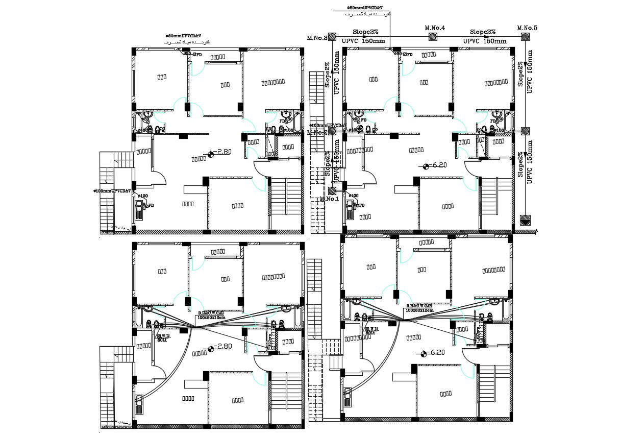
The architecture typical apartment floor plan CAD drawing includes a drainage line plan to connect the bathroom and kitchen sink. download DWG file of apartment plan and get more detail about column and wall layout drawing.
Uploaded by:

