LOGIN
HOME
CATEGORIES
UPLOAD FILE
PRICING
HOUSE PLAN
ABOUT US
CONTACT US
Concrete Building Wall Section Drawing Free DWG File
Home
Categories
Dwg Cad Blocks
Wall And Railings
Concrete Building Wall Section Drawing Free DWG File
Uploaded by:
Komal
View Profile
View Profile
Description
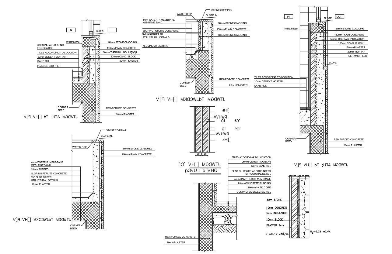
2d CAD drawing of RCC wall section blocks drawing includes text and Dimension tools. download free DWG file of wall section drawing with description detail.
File Type:
DWG
File Size:
1.1 MB
Category::
Dwg Cad Blocks
Sub Category::
Wall And Railings
type:
Free
Uploaded by:
Komal
View Profile
Download
Add to libary
find Latest
Related
Files