Basement Parking Layout Plan And Working Drawing CAD File
Description
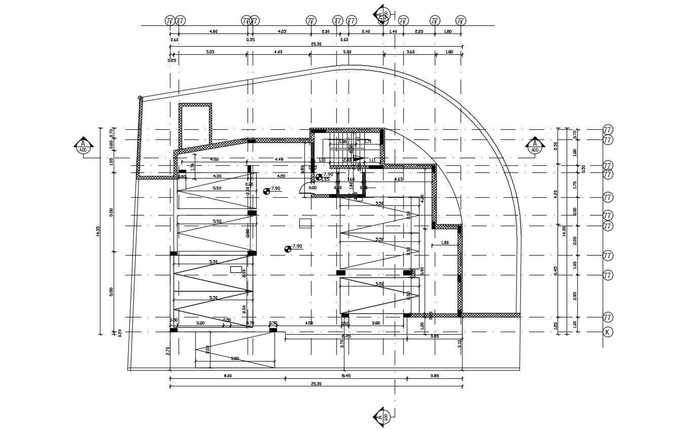
this is the planning of basement with car parking layout, centerline plan, working dimension details, structure column demarcation details, peripheral shear wall details, floor levels marking.
Uploaded by:
Rashmi
Solanki

