Foundation Plan Of Apartment With Column Design DWG Drawing
Description
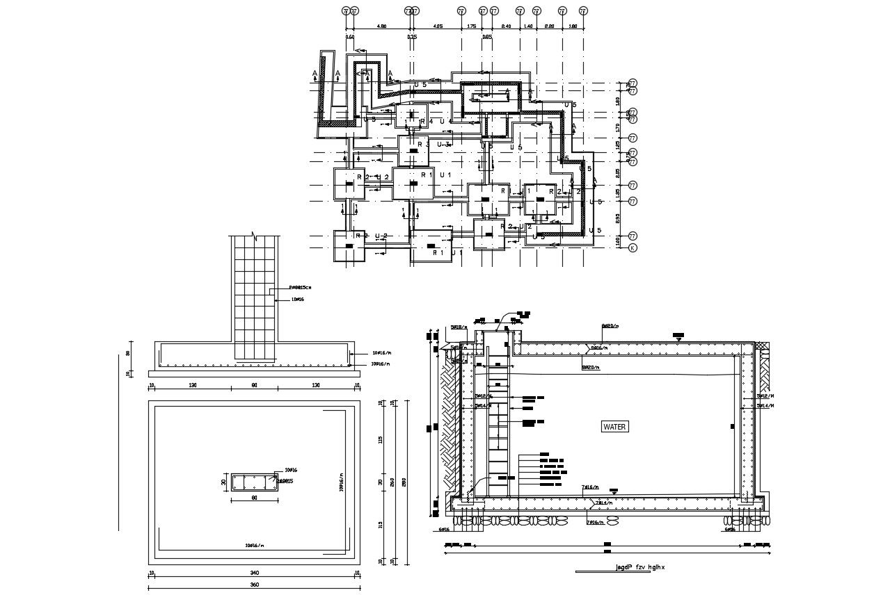
this is the drawing of the apartment foundation with centerline plan, working dimension details, reinforcement details of column, underground water tank details with RCC wall design.
Uploaded by:
Rashmi
Solanki

