Architecture Building Floors Plan And Working Drawing DWG File
Description
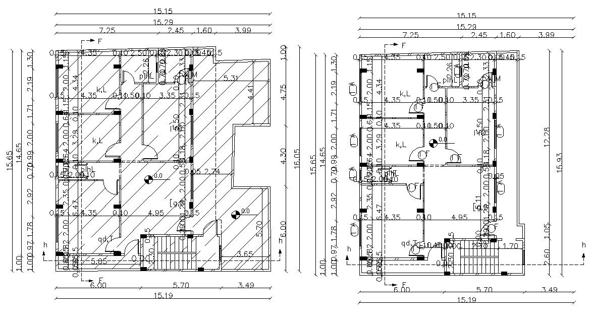
this is the planning of a simple two-floors building with working drawing dimension details structure column demarcation, door window details in plan and many more other details in DWG drawing. Download the DWG file and use it in the project.
Uploaded by:
Rashmi
Solanki

