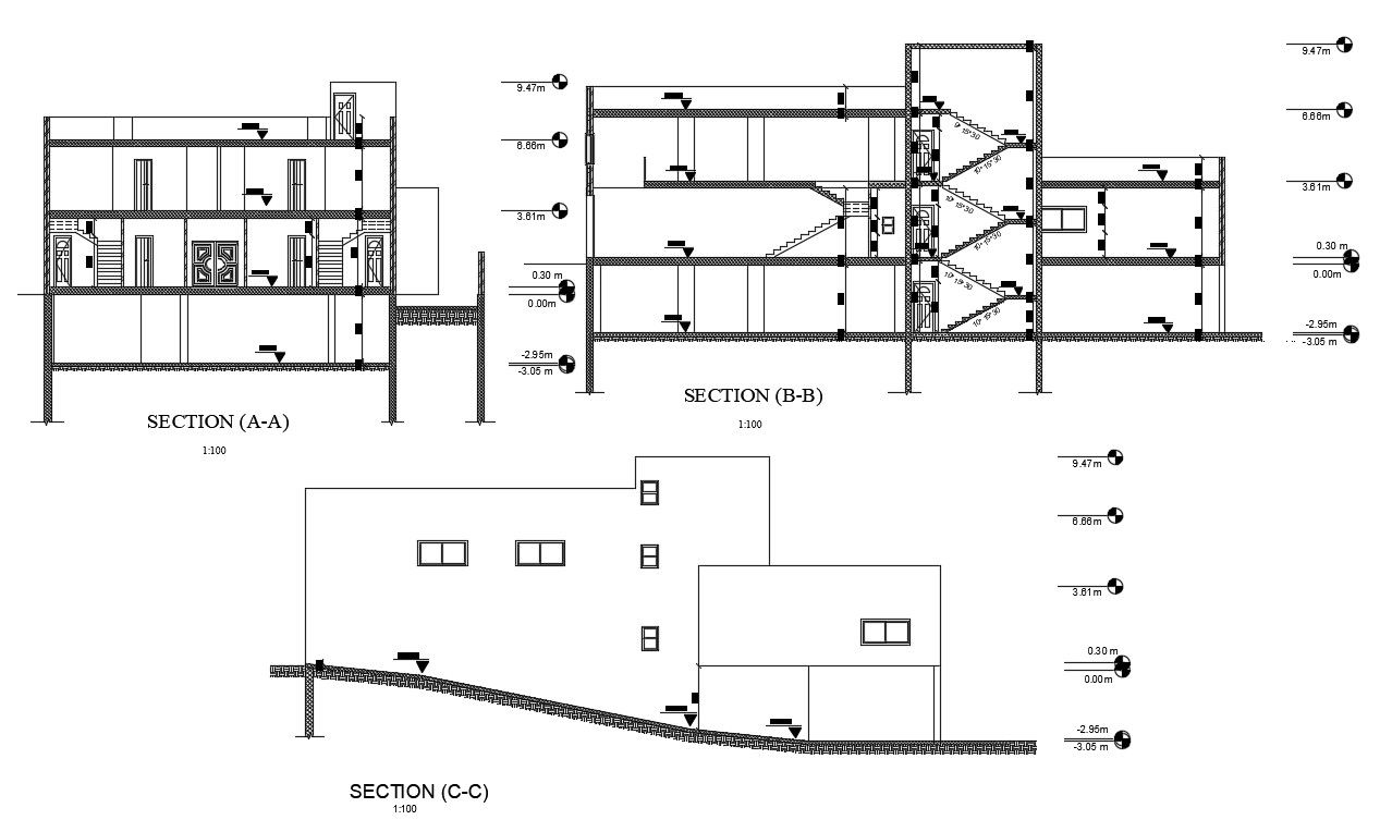
3 Storey House Building Cross Section And Elevation Design DWG File
Description
2d AutoCAD drawing of architecture residence 3 storey house building design with dimension detail Autocad file includes cross wall section, floor and slab RCC details. download DWG file of house project design.
Uploaded by:

