House Layout Plan With Power Supply Line Diagram DWG File
Description
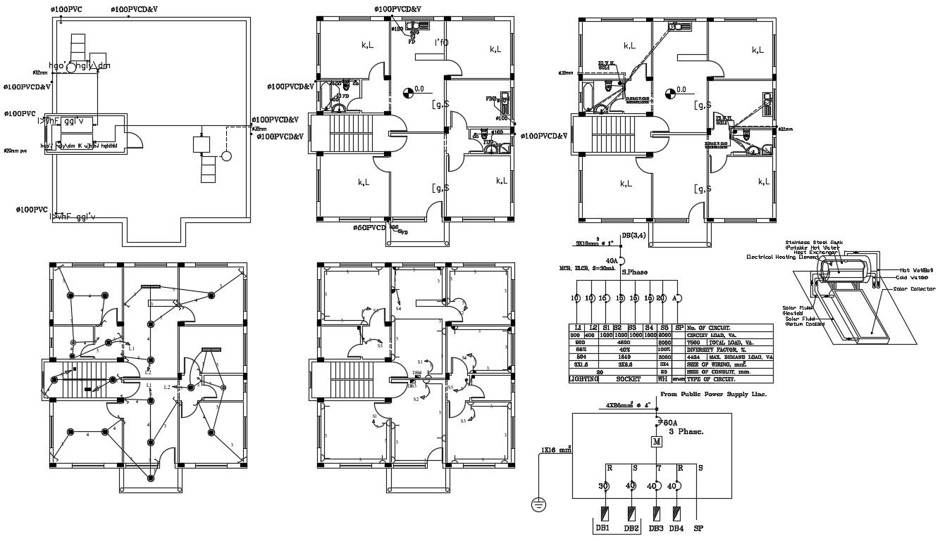
AutoCAD house working plan CAD drawing includes drainage line, electrical layout plan, and plumbing detail. download DWG file of house plan with beam layout design and power supply line diagram.
Uploaded by:

