Architecture House Final Plot Design With Dimension DWG file
Description
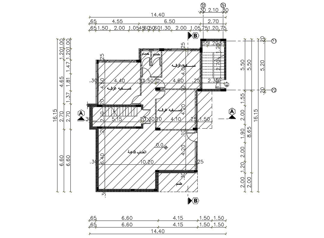
The architecture residence house final townsite plan design and build-up area detail with all dimension detail in AutoCAD format. download DWG file of house final plan and get more detail of column and wall design.
Uploaded by:

