RCC Foundation And Column Plan For Bungalow Drawing DWG File
Description
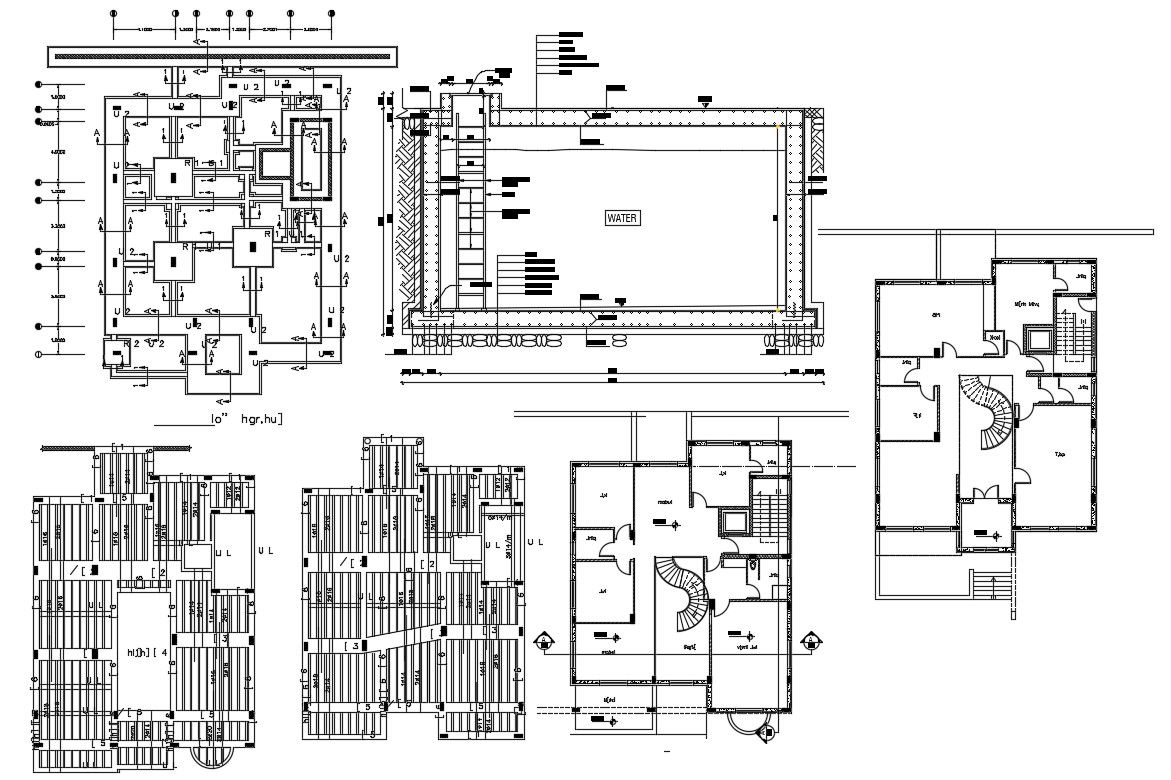
The layout of the building is shown ground level RCC foundation plan, column and pier slab reinforced to derive pushover curves for different loading directions of the building. download DWG file of bungalow construction working plan DWG file.
Uploaded by:

