Free Aluminium Frame Door Installation DWG Drawing
Description
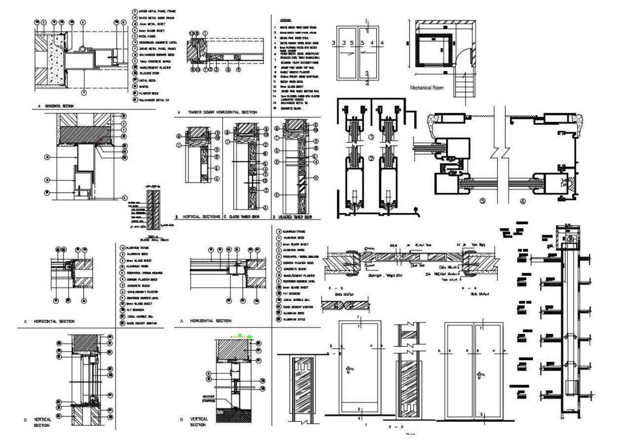
2D cad drawing of aluminium frame door installation blocks design includes verticle section, glazed and louvred timber door section drawing and elevation design with dimension details.
Uploaded by:

