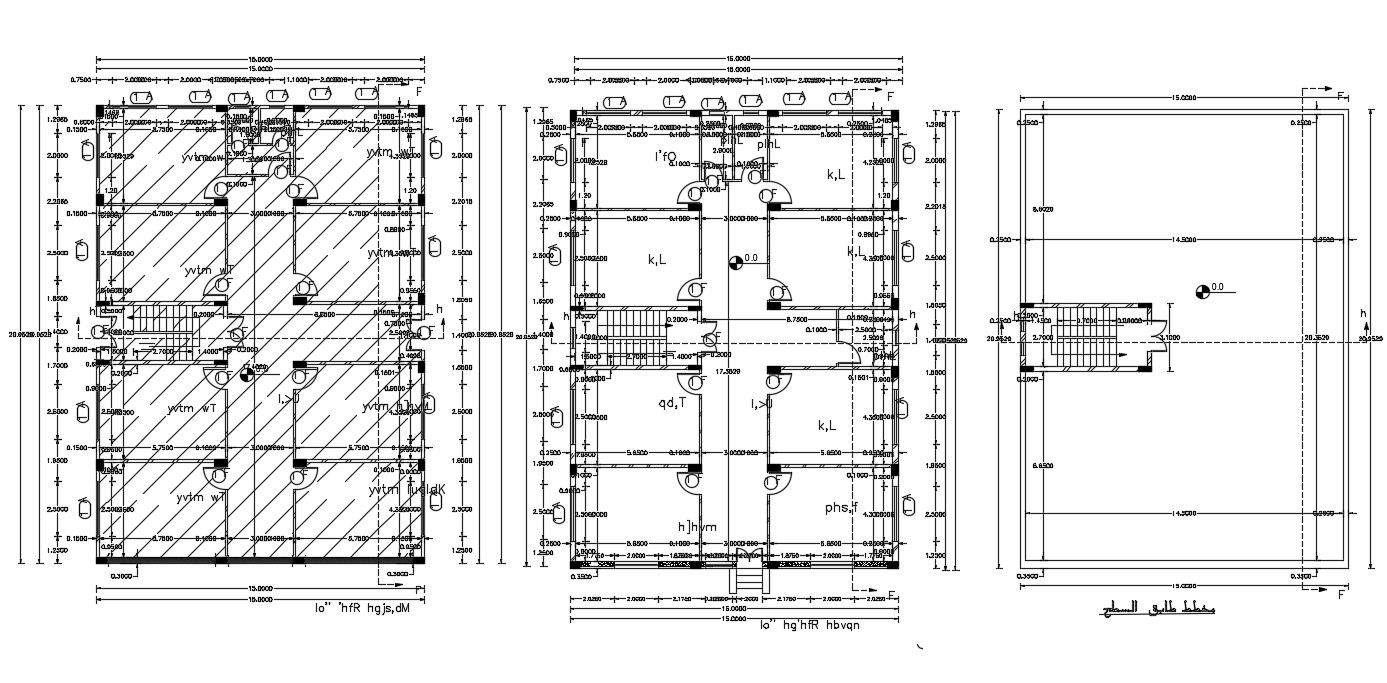
Commercial Building Floor Plan With Dimension DWG File
Description
The commercial building ground floor, first floor, and terrace floor plan CAD drawing includes beam layout design and dimension detail. download DWG file of commercial building floor plan.
Uploaded by:

