3 Bedroom House Plan With Construction Drawing DWG File
Description
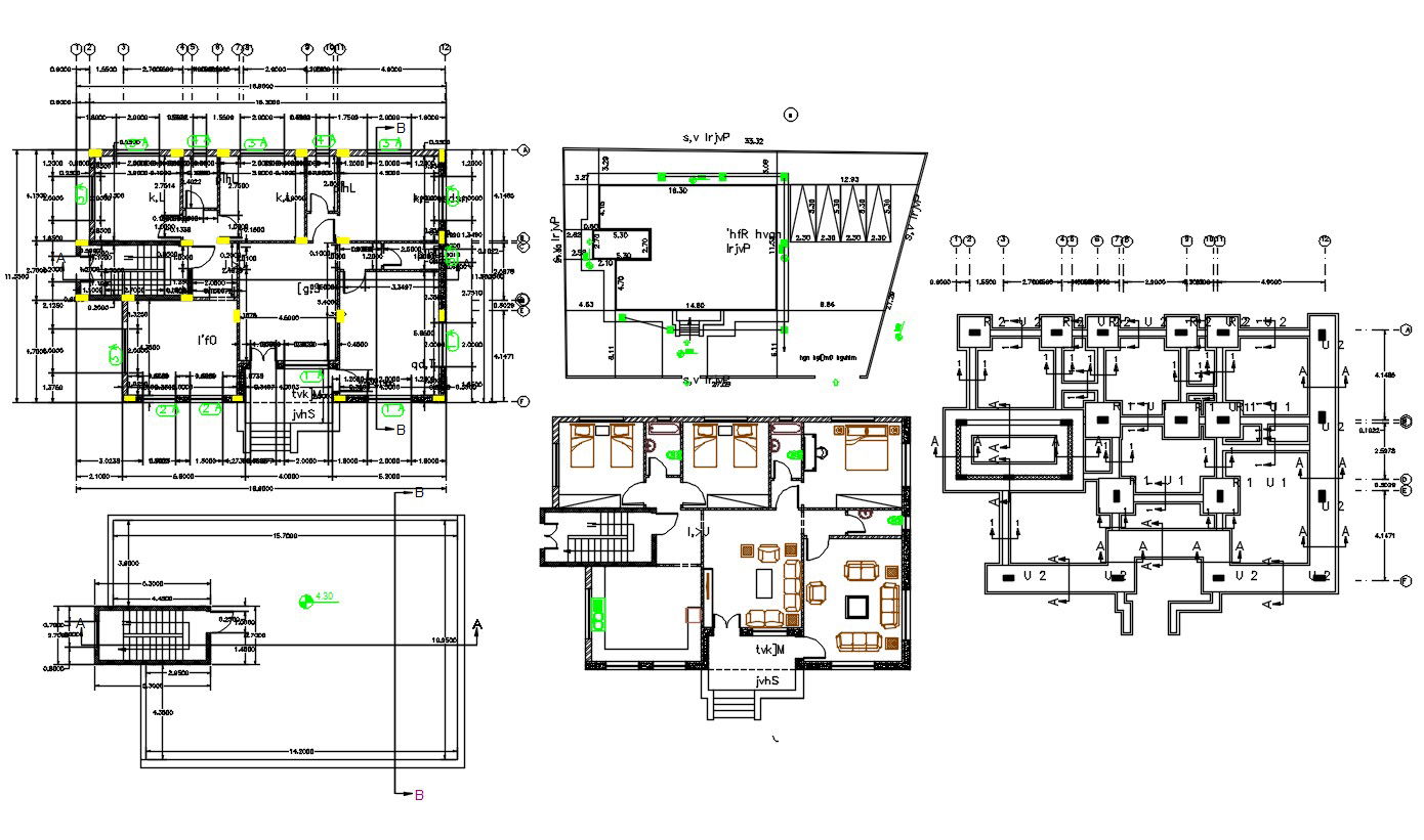
the architecture 3 BHK house plan CAD drawing includes ground floor and terrace plan with furniture and dimension details. download DWG file of house project and get more detail of foundation and beam layout plan.
Uploaded by:

