3 Bedroom Apartment Plan With Furniture Layout DWG File
Description
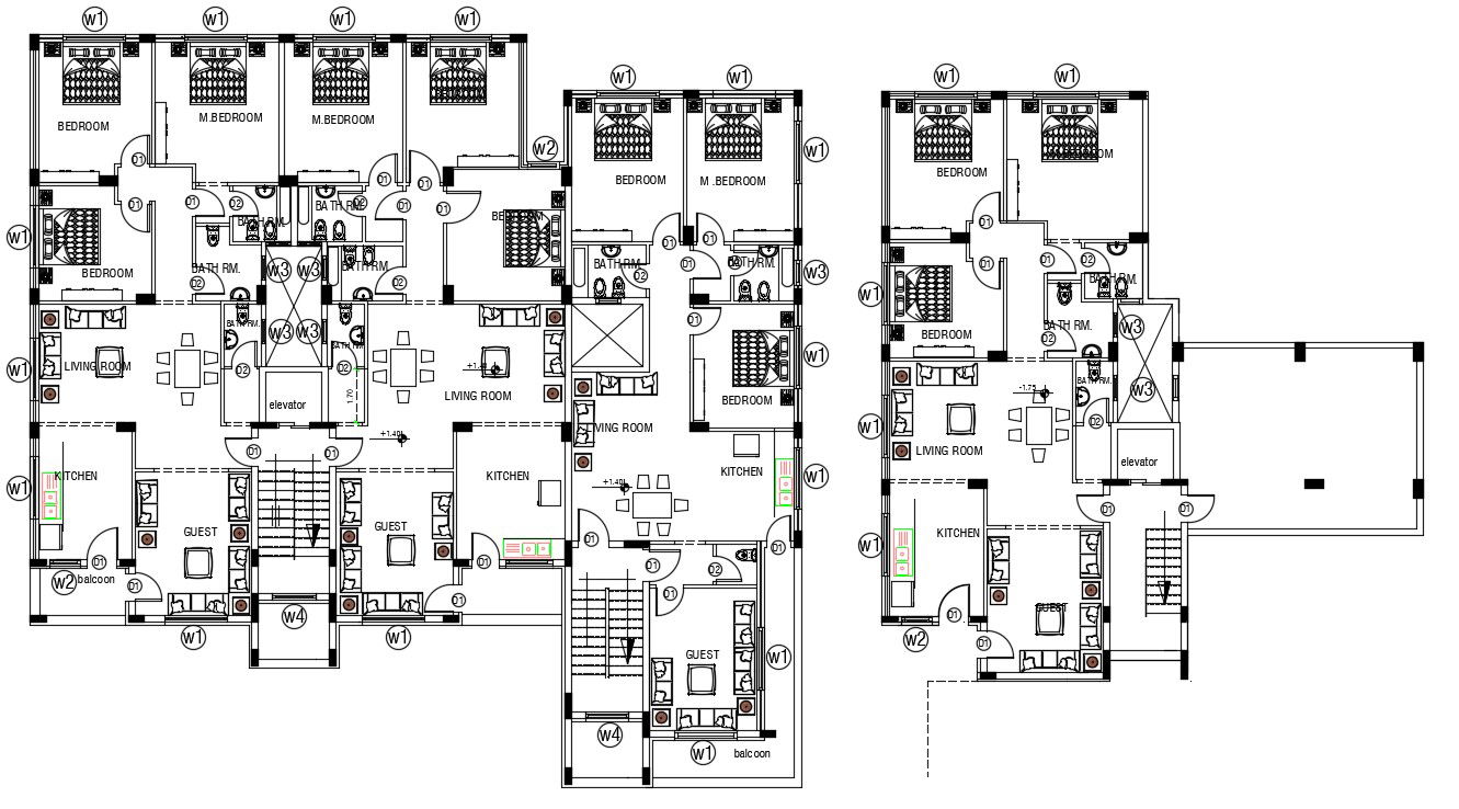
the architecture apartment furniture layout plan CAD drawing includes 3 bedrooms, kitchen, dining area, living room, and drawing room with description detail. there are 3 house units on a single cluster plan. download DWG file of the apartment floor plan.
Uploaded by:

