AutoCAD Drawing Drainage And Electrical Layout Plans DWG file
Description
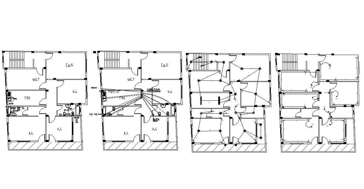
it's a building floor plan with plumbing, electrical details, kitchen, and toilet sanitory layout, its an Architecture plan with structure column marking, download the DWG file.
Uploaded by:
Rashmi
Solanki
