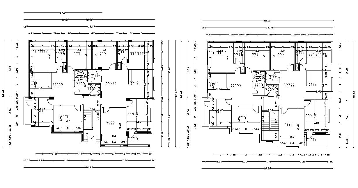
Floor Plans Of Flat Design And Working Drawing DWG File
Description
it's a four-bedroom, hall, kitchen, toilets, and balcony desing, it's an architectural drawing of the apartment, working drawing dimension details, structure column layout, stair and lift in this plan, its a DWG file.
Uploaded by:
Rashmi
Solanki

