House Building Floor plan With Parking Layout DWG file
Description
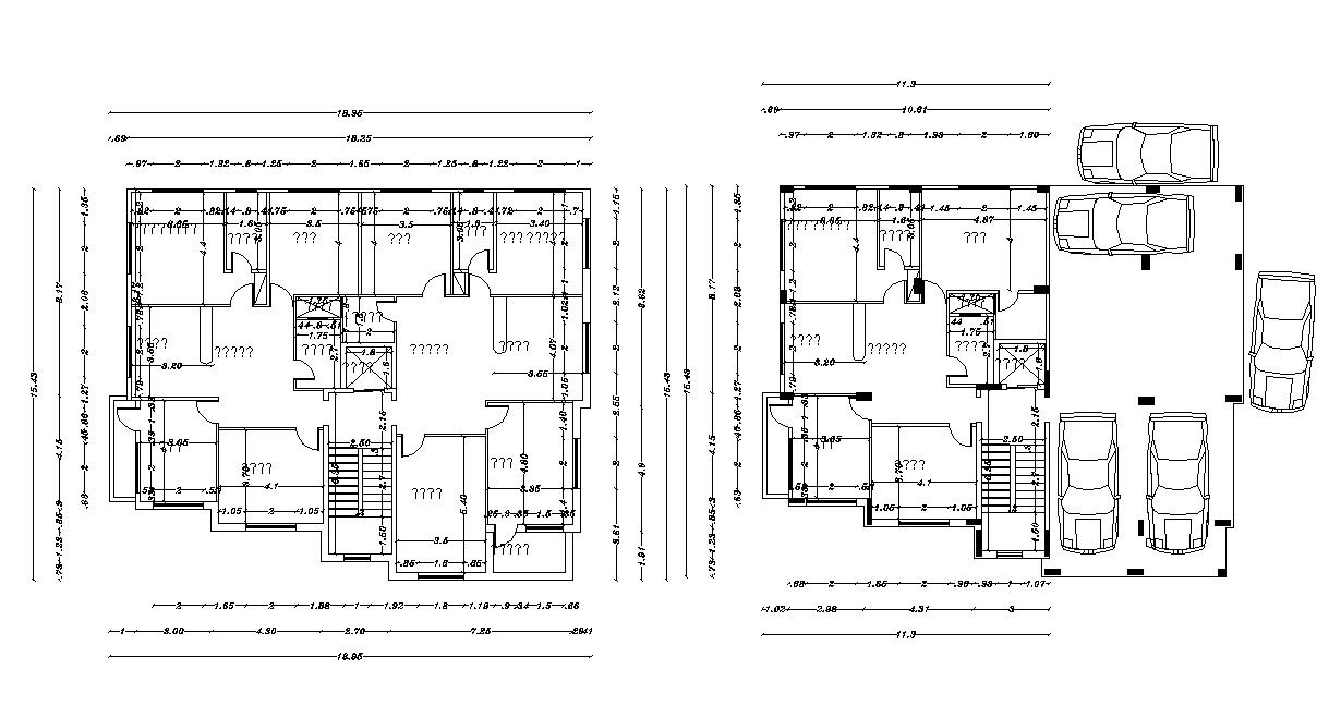
it's a planning of four BHK apartment desing includes working drawing dimension, its two units cluster plan, stair, and lift design, duct, doors, and window, car parking layout, structure column desing, its a DWG file.
Uploaded by:
Rashmi
Solanki

