Survey Land Demarcation And Plumbing Design CAD DWG File
Description
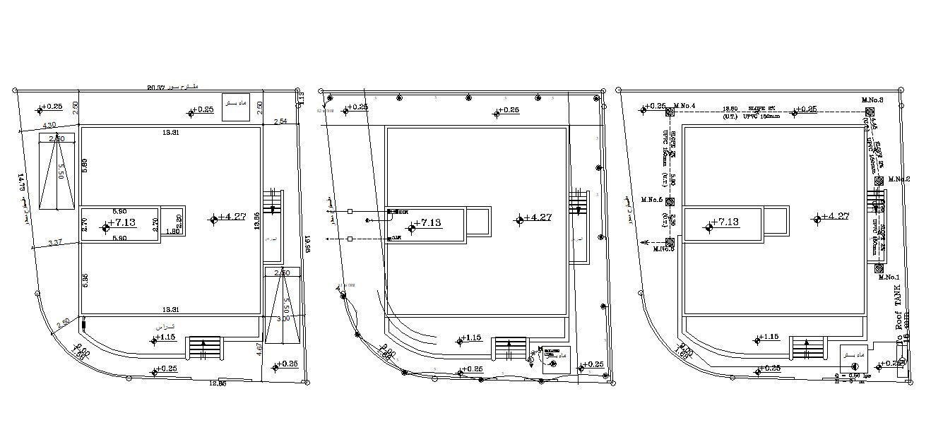
this is the drawing of site and building marking design includes manhole plumbing details in the ground floor plan, peripheral plot dimension details, some land levels, car parking and much more other details related survey design, download the DWG File.
Uploaded by:
Rashmi
Solanki

