DWG File Structure Column Foundation And Shear Wall Design
Description
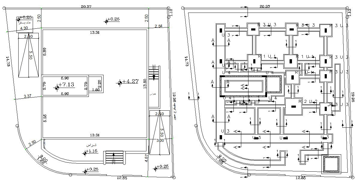
this is the drawing of column footing with peripheral excavation design, section line on the plan, site and building demarcation details, plot size and internal dimension, car parking, some land levels and much more other details related to building, DWG file format.
Uploaded by:
Rashmi
Solanki

