Architecture Site Plan And Small House Design DWG File
Description
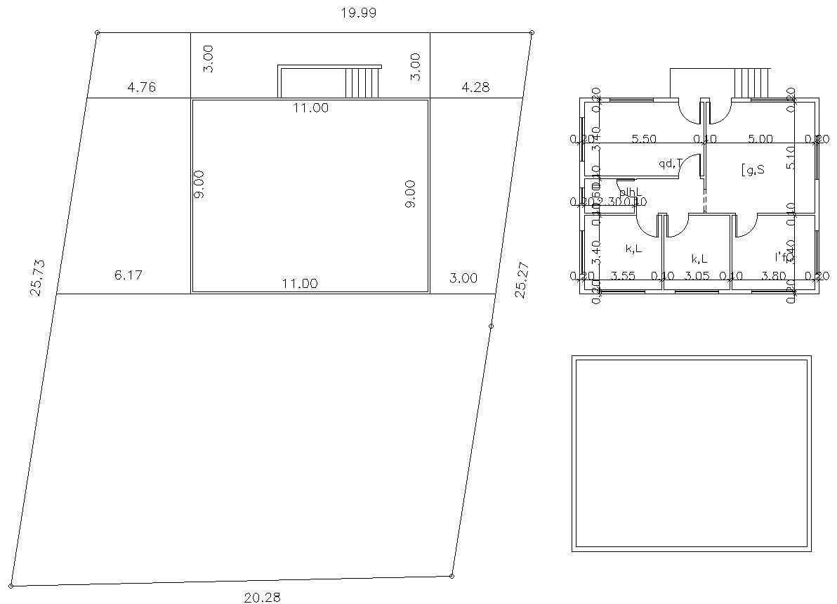
this is the master site plan with building boundary line design includes small bungalow planning and working dimension drawing, terrace plan, also plot demarcation level plan and much more other details related to house,this is the DWG file format.
Uploaded by:
Rashmi
Solanki

