Foundation And Column RCC Structure Section Drawing
Description
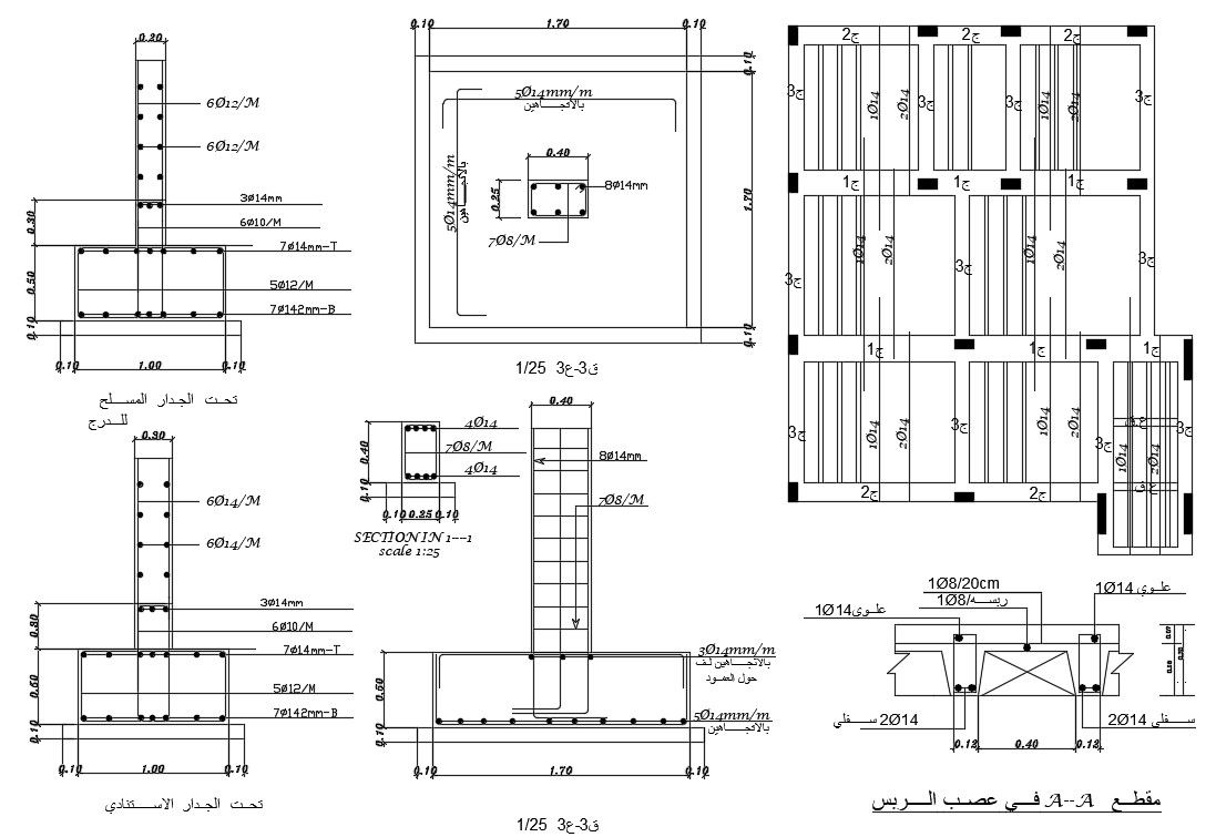
The reinforced based on foundation column structure CAD drawing shows RCC beam with slab joint bar section drawing with dimension detail. download free DWG file of reinforcing construction plan. this drawing helpful to civil engineer to construct the building.
Uploaded by:

