2D CAD Drawing Of School Building Working Plan DWG File
Description
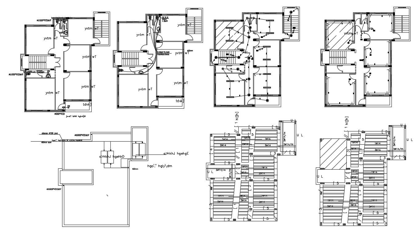
The architecture school building construction floor plan CAD drawing includes plumbing layout plan and electrical wiring with ceiling light pint detail. download School project DWG file and get more detail of beam and RCC slab joint bar plan.
Uploaded by:
