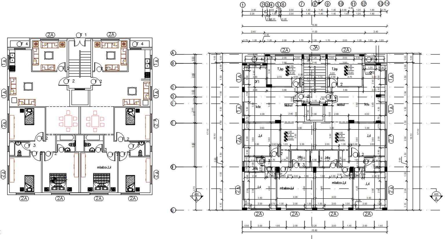
3 BHK Apartment Plan With Dimension DWG File
Description
the architecture residence apartment furniture layout plan CAD drawing includes 3 bedroom, kitchen, drawing room, living area, and dining area with dimension and centre line detail for file to construction the build-up. Download DWG file and collection of fabulous ideas that would serve as a good source of inspiration drawing.
Uploaded by:
