Bungalow Design With Swimming Pool AutoCAD DWG File
Description
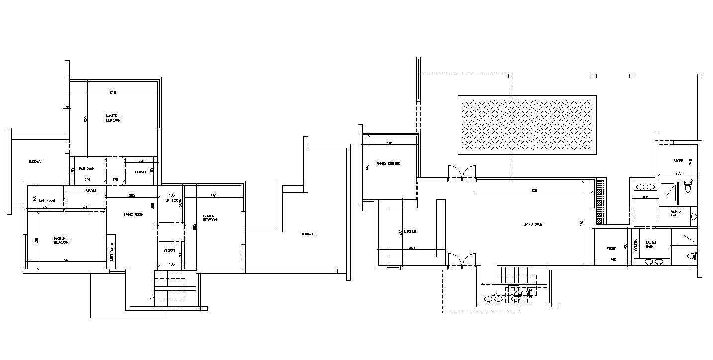
this is the architecture bungalow planning includes living room, family room, kitchen, ladies and gents changing room, store, swimming pool with deck area, three master bedrooms with attached toilets and dressing area, terrace area, this is the DWG file.
Uploaded by:
Rashmi
Solanki

