House Floor Plan And Structure Column Layout Design
Description
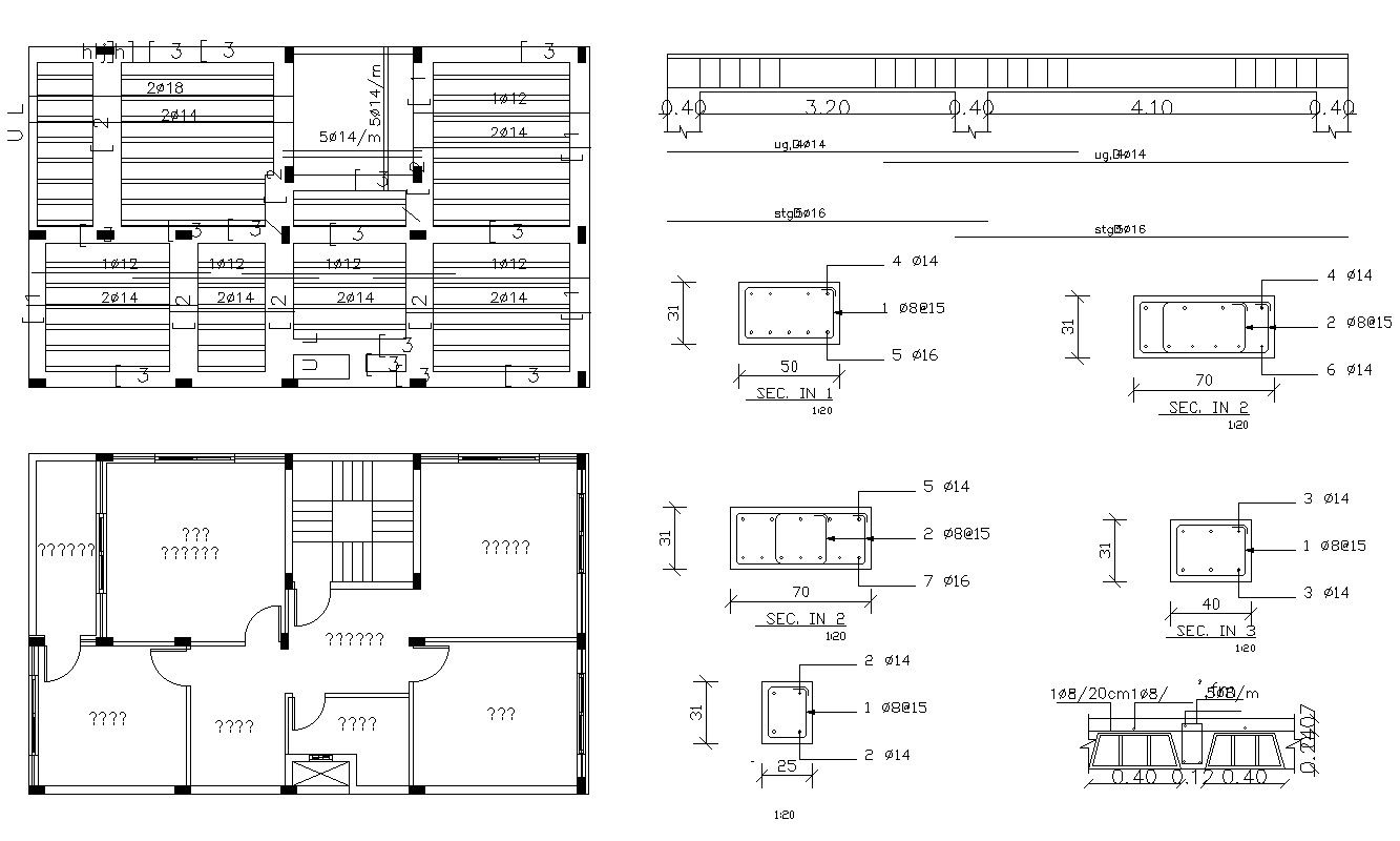
this is the planning of house building includes structure column layout details, beam section reinforcement bars design, Structure slab casting design, bars dia texing and much more other details related to building.
Uploaded by:
Rashmi
Solanki

