House Floor Layout Plan With Electrical And Plumbing Drawing
Description
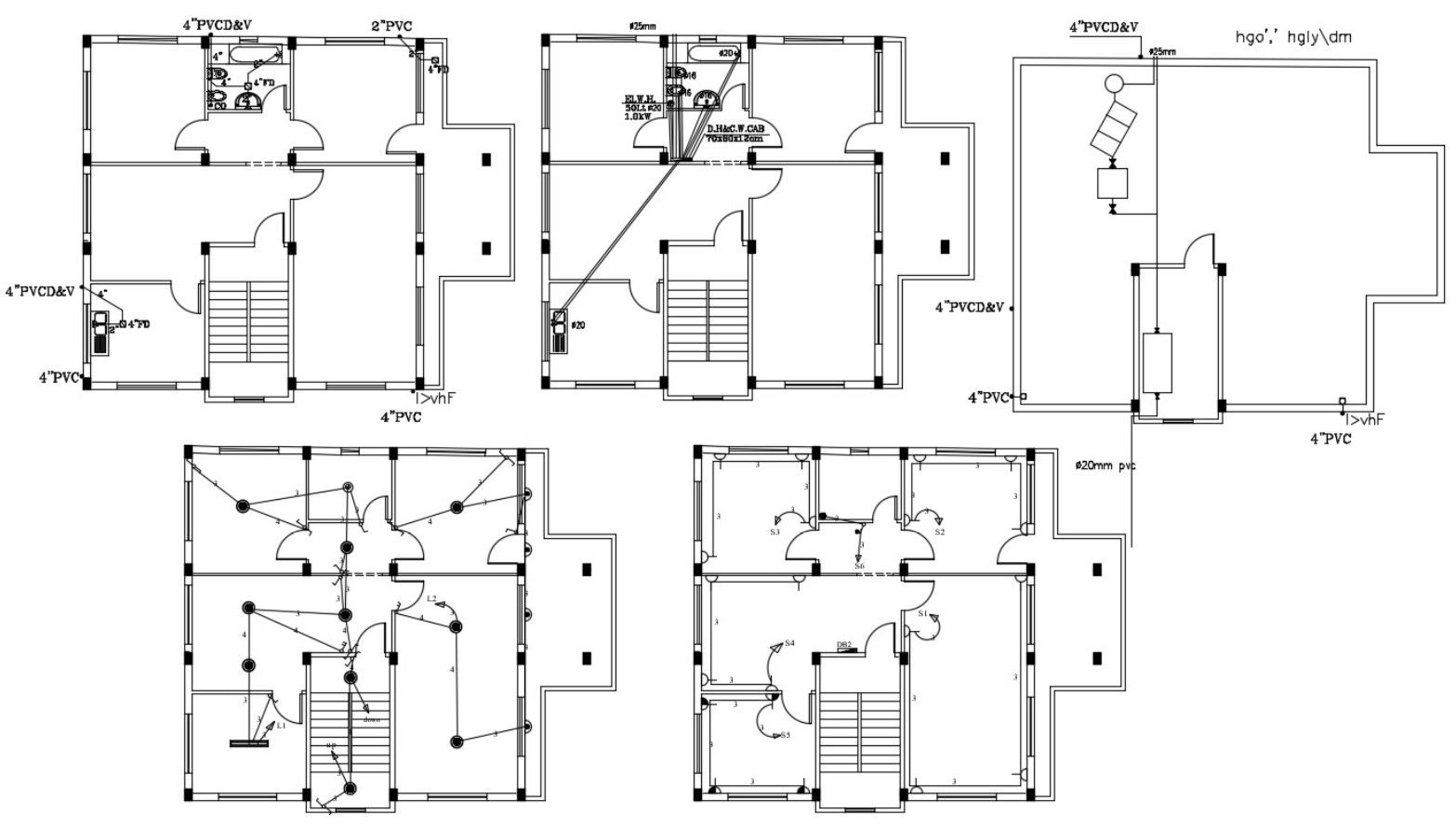
The architecture residence house floor plan CAD drawing includes beam layout plan, electrical wiring plan, and plumbing line detail in AutoCAD format. download DWG file of residence house floor plan AutoCAD drawing.
Uploaded by:

