Apartment Building Section drawing With Lift Elevator Design
Description
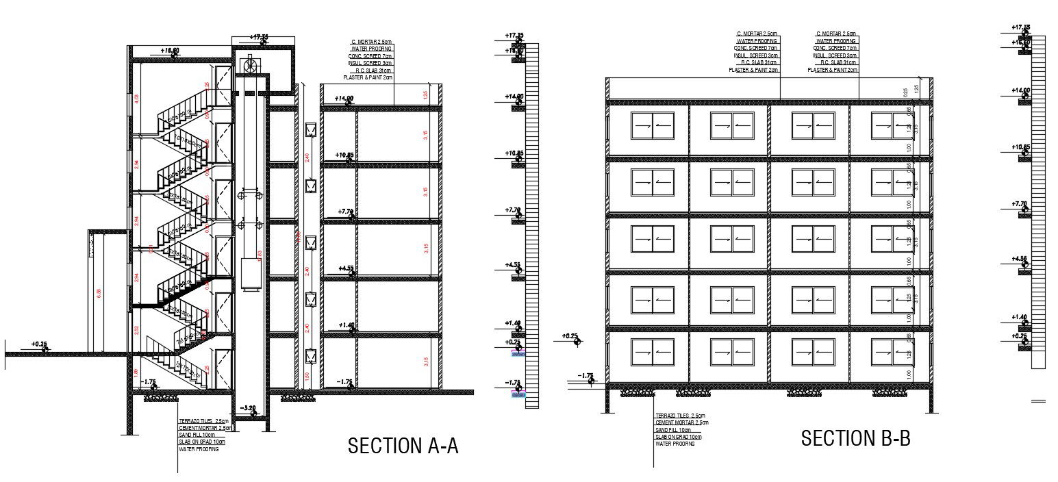
the architecture apartment 6 storey building section drawing with lift elevator design CAD drawing includes slab on grade construction, wall section and staircase with all dimension detail.
Uploaded by:

