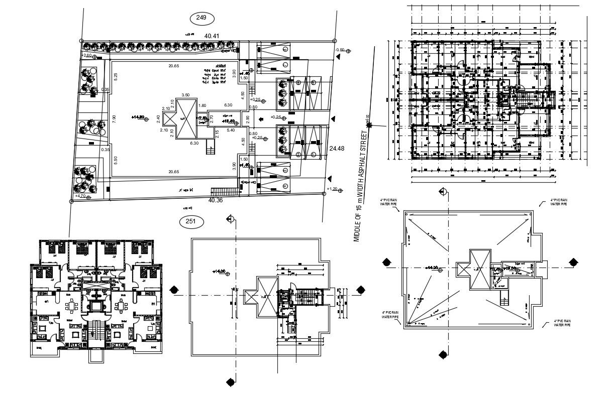
Apartment Building Site Plan And Typical Layout Design
Description
3 BHK apartment project AutoCAD drawing includes furniture layout plan, site plan, terrace floor and working beam layout plan with dimension details DWG file. download DWG file apartment building plan with landscaping design and parking detail.
Uploaded by:

