Architecture House Building Drawing With Parking Layout
Description
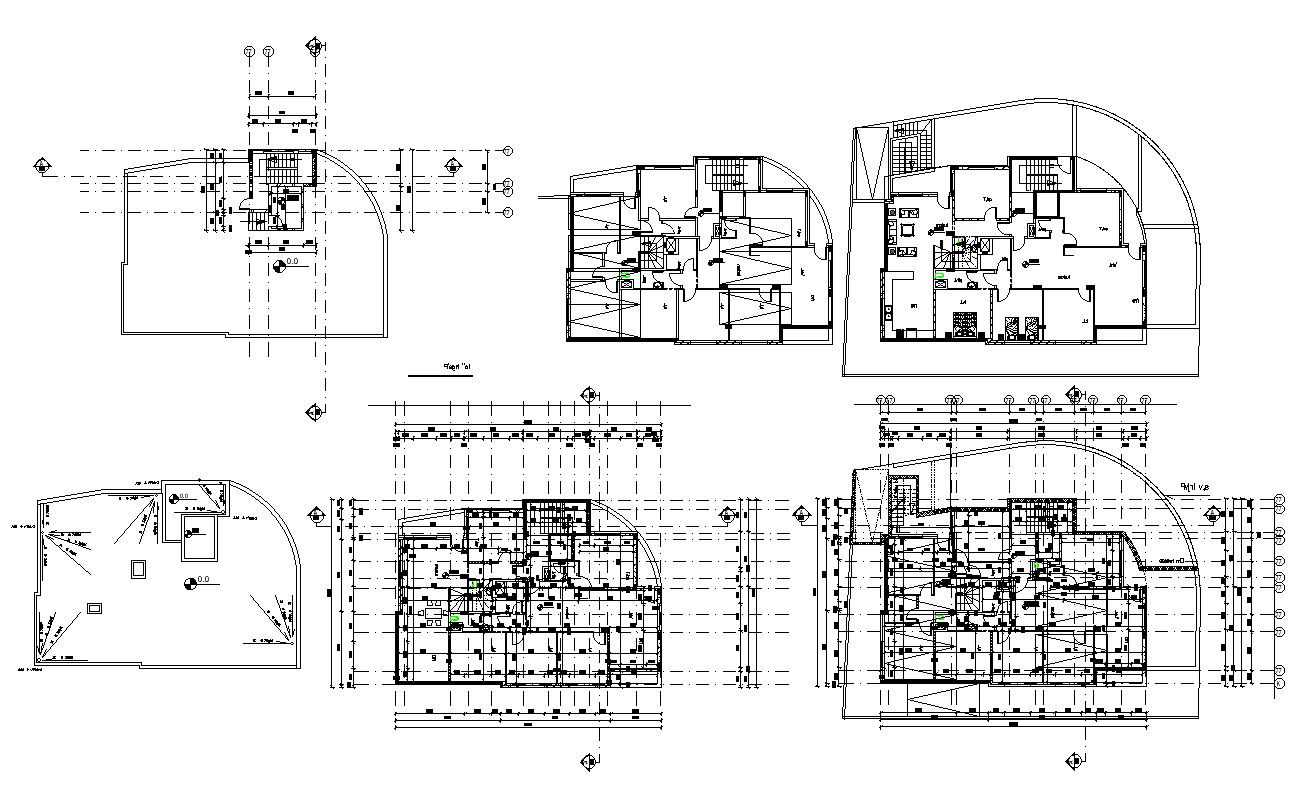
this is the planning of huge bungalow layout with working dimension details, column centerline, terrace layout plan, section line in the plan, ground floor stairs details, car parking layout plan, in this plan added drawing room, kitchen, bedrooms, toilets stairs and much more other details related to bungalow.
Uploaded by:
Rashmi
Solanki

