Four Side Elevation Of House Design Architecture Drawing
Description
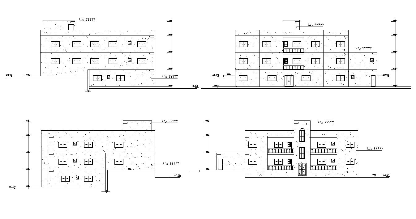
this is the simple elevations of house with hatching design, floor levels dimension details, doors and windows details, railing design in balcony, and much more other details related to elevations.
Uploaded by:
Rashmi
Solanki

