Reinforced Foundation Column Plan With RCC Structure Design
Description
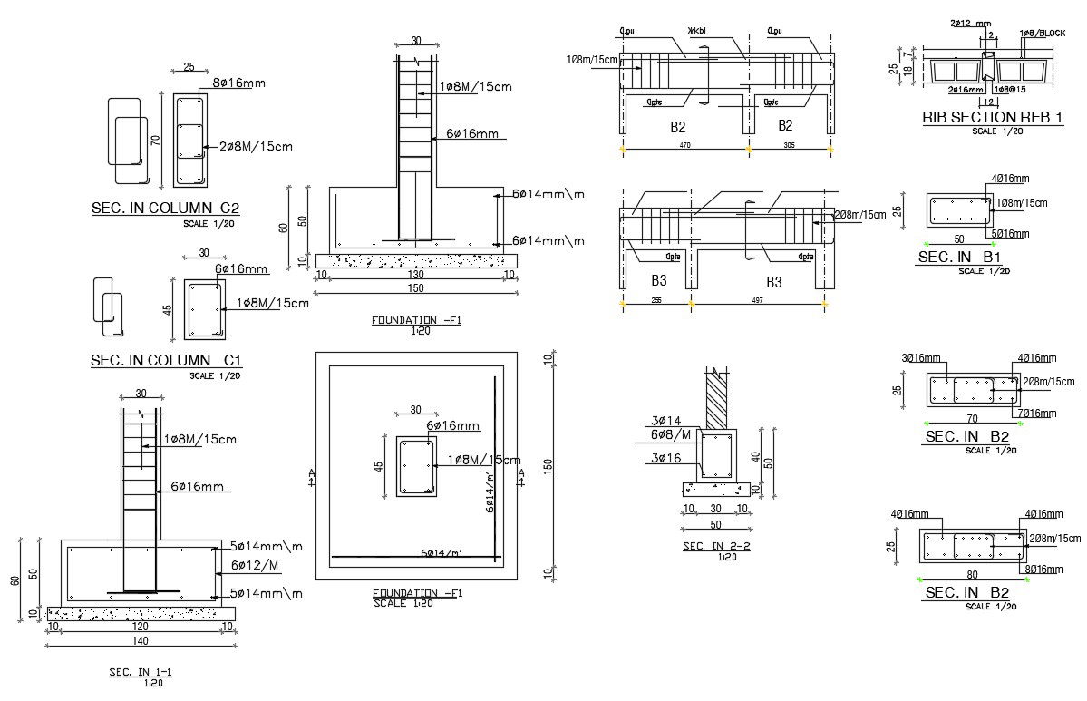
The horizontal structural members that transfer the loads levelly by their length to the supports on foundation column. download free DWG file of RCC foundation column structure detail with reinforce size in CAD drawing.
Uploaded by:

