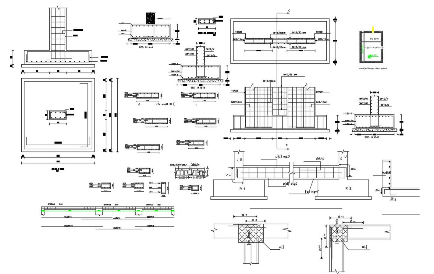
Joint Foundation Pad Footing and Column Beam Drawing
Description
the reinforced based on foundation column structure CAD drawing shows RCC foundation and columns is on the basis of the overall loads functioning on the columns which go from lateral loads. download DWG file of joint foundation column structure design.
Uploaded by:

