Residence House Layout Plan With Electrical And Plumbing Design
Description
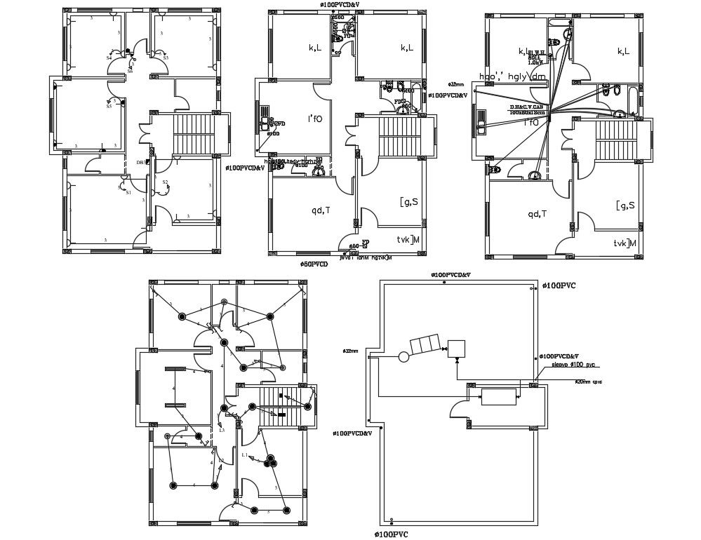
The architecture AutoCAD house layout plan CAD drawing includes floor plan, plumbing and electrical layout plan. download DWG file of house floor plan and get more detail of electrical witing with false ceiling design.
Uploaded by:

