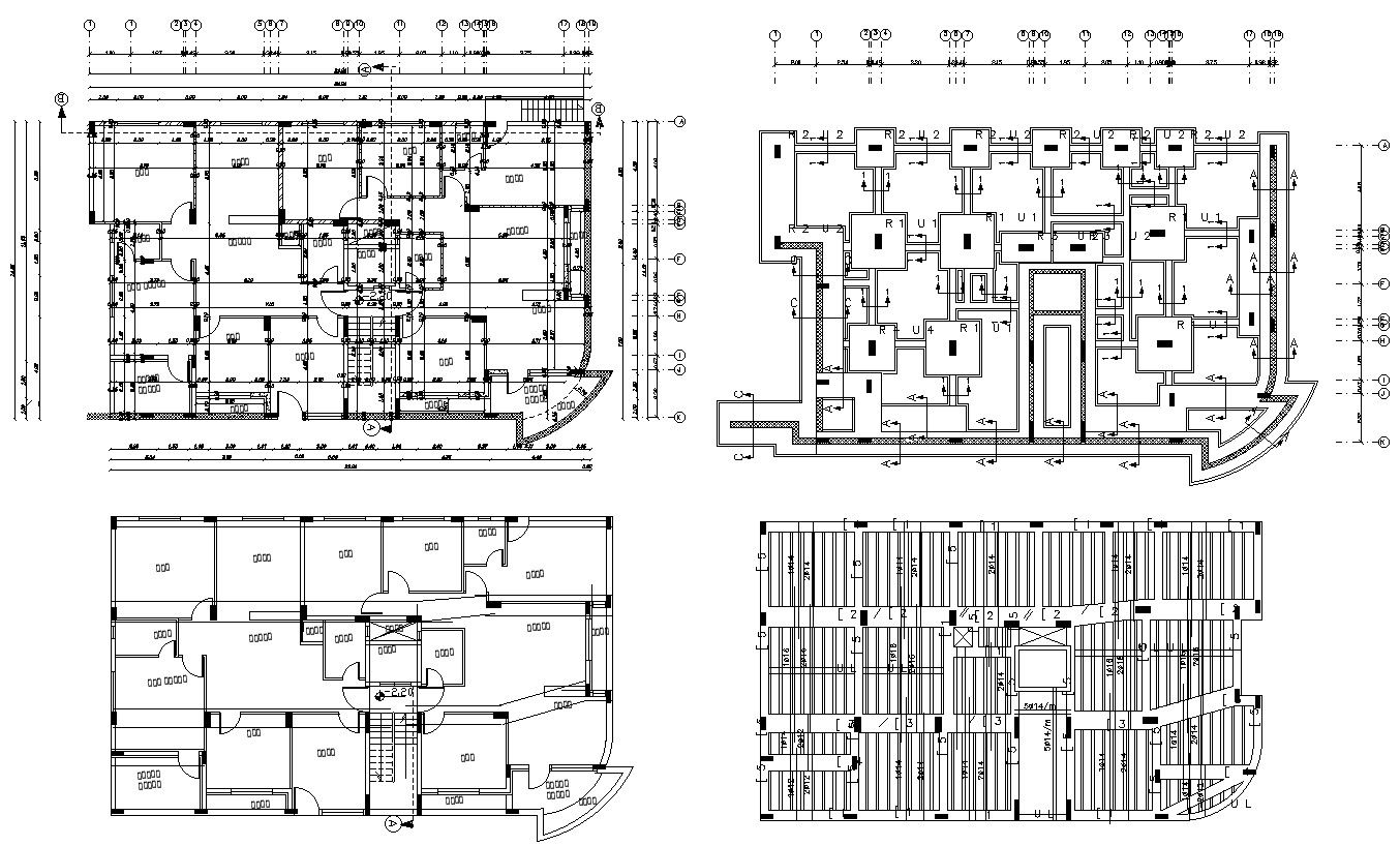
Apartment Design With Working Drawing And structure Column layout
Description
this is the two floors plan of Flat design includes column foundation details, centerline, working drawing dimension details, structure column layout design, slab design with bars details.it's an architecture residential building plan.
Uploaded by:
Rashmi
Solanki

